Overview
-
BedroomsBedrooms 4
-
BathroomsBathrooms 4
-
GarageRooms 4
-
Year BuiltYear Built
-
Area SizeSize 1900 Sq Ft
Information
Details
-
PriceNegotiable
-
Property IDProperty ID:
-
Area SizeSize 1900 Sq Ft
-
Land Area SizeLand Area 0
-
RoomsRooms 4
-
BedroomsBedrooms 4
-
Year BuiltYear Built
Description
A rare opportunity to partner in developing a high-potential guest house in the thriving tourism destination of Dhigurah. This property is offered on a 25-year term, making it ideal for investors or operators looking to establish or expand their hospitality portfolio.
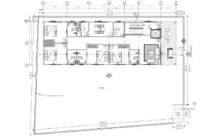
Situated on a generous 5,451 sq ft plot, the approved design features a 5-storey building with a per floor built-up area of approximately 1,900 sq ft, offering efficient space planning for guest rooms, amenities, and operational areas.
The layout is well-suited for a modern guest house concept, allowing for multiple rooms across each floor, along with common areas such as reception, dining, and rooftop facilities. Dhigurah’s growing popularity among tourists ensures strong occupancy potential and long-term returns.

This is an excellent opportunity for a capable party to take on development and operation, leveraging both the strategic location and the efficient building design.
Key Highlights:
- 25-year development opportunity
- Land size: 5,451 sq ft
- Per floor built-up area: ~1,900 sq ft
- Total floors: 5
- Approved 5-storey building design
- Ideal for guest house or boutique hotel
- Located in a high-demand tourist island

Serious parties interested in development partnerships are encouraged to get in touch for further details.
Map
Open on Map- State South Ari Atoll
- Country Maldives
- Postal code 00070



